Главная Страны Купить Снять

Вилла 394 м² в Ровине, Хорватия

1 514 618 $

3 844 $ /м²

4Oi6D
Поделиться:

Площадь

394 м2

Спальни

5

Санузлы

5

Вилла в Истрии. Город - Ровинь

Скидка! Старая цена была 1 600 000 евро, новая цена 1 295 000 евро!

Эксклюзивная отдельная вилла с подогреваемым бассейном в Ровине – всего 2 км от моря

Обзор недвижимости:

  • Полезная площадь: 394 м²

  • Площадь участка: 376 м²

  • Подогреваемый бассейн: 10 x 3 м (30 м²)

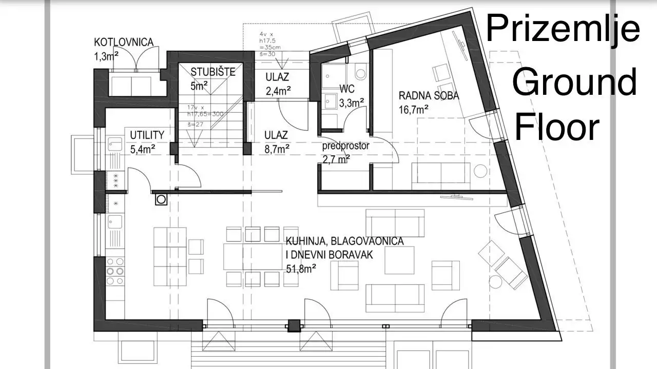
  • Этажи: Подвал + 3 надземных уровня

Эта потрясающая, недавно построенная отдельная вилла в Ровине предлагает роскошь, современный дизайн и отличное расположение всего в 2 км от Адриатического моря. Окруженная спокойным районом и ухоженными садами, эта недвижимость идеально подходит как для постоянного проживания семьи, так и для высококлассных инвестиций в туризм.

Внутреннее расположение:

  • Подвал: Котельная, кладовые, большая таверна с камином, ванная комната, лестница и коридор – идеально для развлечений или отдыха.

  • Первый этаж: Входной холл, просторная гостиная с камином, современная кухня, кладовая, спальня, ванная комната и лестница.

  • Второй этаж: Коридор, три спальни, включая мастер-люкс с гардеробной, ванной комнатой и террасой, а также дополнительная ванная комната.

  • Третий этаж: Зона отдыха, предназначенная для джакузи, душа и туалета, ведущая на панорамную террасу на крыше площадью 90 м² – идеально для отдыха круглый год.

Внешние характеристики:

  • Подогреваемый бассейн 10 x 3 м (30 м²)

  • Ухоженный сад и террасы с зоной для барбекю

  • Стеклянное ограждение для современного эстетического вида и безопасности

Современный комфорт и технологии:

  • Теплый пол во всех комнатах и радиаторы в ванных комнатах и лестницах

  • Кондиционеры для отопления и охлаждения

  • Алюминиевая столярка Schüco с встроенными коробками Roltek, электрические жалюзи

  • Система умного дома KNX

  • Система сигнализации, видеонаблюдение и домофон

  • Устойчивые технологии: газовый котел, тепловые насосы, когенерация и солнечные панели

Коммунальные услуги и разрешения:

  • Городской газ, вода и канализация

  • Строительное разрешение, свидетельство о праве собственности, разрешение на эксплуатацию и Энергетический сертификат A+

Расположение и окрестности:
Ровинь (итальянский: Rovigno) – одно из сокровищ истрийского побережья и один из лучших туристических направлений Хорватии. Расположенный на западе Истрии, город сочетает средиземноморское очарование с богатым культурным наследием, предлагая потрясающие пляжи, 22 острова и островка, субтропическую растительность и мягкий климат с среднегодовой температурой 16°C. Недвижимость удобно расположена в 2,08 км от моря, обеспечивая как уединение, так и легкий доступ к прибрежным достопримечательностям.

Эта эксклюзивная вилла представляет собой редкую возможность стать владельцем роскошной недвижимости в одном из самых востребованных мест Хорватии, идеально подходящей для семейного проживания или премиум-туристической аренды.

Ref: RE-U-46069

При покупке недвижимости в Хорватии покупатель несет дополнительные расходы около 7% от цены купли-продажи: налог на переход права собственности (3% от стоимости недвижимости), агентская комиссия (3% + НДС), гонорар адвоката (ок. 1%), нотариальная пошлина, судебная пошлина, оплата услуг сертифицированного переводчика. Подписание Агентского соглашения (на 3% комиссии + НДС) предшествует показу объектов.

Преимущества: Терраса на крыше, Бассейн, Хранилище, Спа, Сад, Отдельно стоящий, Современный

Услуги и удобства

Бассейн
Кондиционер
Система отопления

Дополнительные детали

Тип недвижимости

Жилые объекты

Тип объекта

Вилла

Цена

1 514 618 $

Площадь участка

376

Характеристики

Бассейн
Кондиционер
Система отопления

Частые вопросы

В Хорватии ВНЖ оформляется после инвестиции от установленного порога. Рассмотрение заявки в Ровине — 30–60 дней. Нужны паспорт, подтверждение средств и документы на объект. ХатаМатата помогает подготовить и подать бумаги.
Банки в Хорватии кредитуют 50–70% стоимости, ставка 3–5% на 20–30 лет. Нужен первый взнос 30–40% и страхование жизни. Условия различаются по городам и банкам.
Налог на передачу права 0–15%, регистрация 0,5–2%, нотариус 0,5–1,5%, комиссия агента 0–3%. Суммарно 2–20% сверх цены объекта. Ставки зависят от региона, типа недвижимости и программ.
Выписка из реестра в Хорватии занимает 10–15 рабочих дней: право собственности, обременения, налоги. Документы переводят и проверяют с юристом до подписания.
Да. Налог на рентный доход 5–25% в зависимости от режима. Краткосрочная аренда в Ровине (туристическая) даёт 5–8% годовых. Нужно разрешение муниципалитета и регистрация дохода.
Да, рекомендуется. Стоимость — 0,5–1% от цены (1 514 618 $). Проверяют конструкцию, коммуникации, юридический статус. ХатаМатата подбирает инженера и выдаёт отчёт на RU/EN.
Типичная сделка — 30–90 дней, в среднем 45 дней в Ровине. Проверка (10–15 дней), нотариат (5–7 дней), регистрация (10–14 дней), ВНЖ (30–60 дней, если нужен).

Похожие разделы

Все статьи
Купить виллу в Хорватии 1290000€
Вилла на продажу в Барбане, Хорватия 1 508 770 $
4
4

230

Это предложение премиальной недвижимости в Барбане представляет собой редкую возможность для тех, кто ищет виллу в Истрии,...

Купить виллу в Хорватии 765000€
Продажа виллы в Лабине, Хорватия 894 735 $
3
3

140

Современная дизайнерская вилла площадью 140 м² на обширном участке 1,599 м² – рядом с Лабином и Рабацем!