Главная Страны Купить Снять

Квартира 62 м² в Анталье, Турция

196 828 $

3 174 $ /м²

4OiDT
Поделиться:

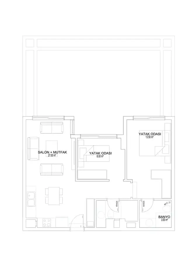
Площадь

62 м2

Спальни

1

Санузлы

1

Год постройки

2025

Квартира в Анталье. Город - Анталья

Для аренды

Для инвестиций

Что вы получаете: Новые апартаменты в комплексе с инфраструктурой в районе Алтынташ, Анталия.

О строительстве: Начало строительства апрель 2023 года, а завершение запланировано на апрель 2025 года. Есть возможность воспользоваться беспроцентной рассрочкой до окончания строительства.

Район\пляж: Анталья курортный и портовый город на юге Турции на берегу Средиземного моря. Территория Антальи условно поделена на старый и новый город. Анталия делится на 5 районов: Аксу, Дёшемеалты, Кепез, Коньяалты, Муратпаша.

Алтынташ на сегодняшний день является одним из самых быстро застраиваемых районов Анталии. Район расположен на востоке Анталии, территориально он входит в район Аксу. В районе находятся много объектов социальной и коммерческой инфраструктуры.


Что рядом: Комплекс будет расположен всего в 5 минутах от аэропорта и 10 минутах от элитного района Анталии – Лара, где расположены крупные торговые центры, магазины, банки, рестораны, парки и различные достопримечательности, шикарный пляж Лара.

Что в комплексе: На закрытой озелененной территории площадью 4 430 м2 будет расположено 2 жилых блока на 56 квартир, открытый бассейн, детский бассейн, зона отдыха с шезлонгами у бассейна, бар у бассейна, детская площадка, мини клуб, крытый бассейн, хамам, джакузи, финская сауна, фитнес, открытая и крытая парковки, генератор. В комплексе будет установлена система видеонаблюдения, спутниковое ТВ; будет работать консьерж.

Внутри: Доступны апартаменты следующей планировки:

1+1 площадью от 62,5 м2 до 98 м2;

1+1 с террасой площадью 126, 6 м2 и 130,5 м2;

2+1 площадью от 124 м2 до 147 м2.

Апартаменты продаются в полной чистовой отделке, с высококачественными окнами, дверями, готовыми ванными комнатами и кухонным гарнитуром; будет установлен духовой шкаф, варочная поверхность и вытяжка.

Остается только выбрать красивую мебель, с чем мы вам поможем, в рамках бесплатного, послепродажного сервиса от нашей компании.



К продаже представлена коммерческая недвижимость площадью 249 м2 и 259 м2.


Кому может быть интересным: Новые апартаменты в районе Алтынташ, Анталия, дешевле рыночной цены на стадии строительства, для инвестиций, близко к аэропорту, морю.

Услуги и удобства

Балкон или терасса
Интернет
Гараж/паркинг
Система безопасности

Дополнительные детали

Тип недвижимости

Жилые объекты

Количество комнат

2

Этаж

1

Тип объекта

Квартира

Цена

196 828 $

Характеристики

Балкон или терасса
Интернет
Гараж/паркинг
Система безопасности
Вид на город

Инфраструктура

Детская площадка
Хамам
Электрогенератор
Детский бассейн
Видеонаблюдение
Открытый бассейн
Детская игровая комната
Крытый бассейн
Консьерж
Сауна

Расстояние до ключевых пунктов, м

До аэропорта 3000
До моря 4400
До центра 1000

Частые вопросы

В Турции ВНЖ оформляется после инвестиции от установленного порога. Рассмотрение заявки в Анталье — 30–60 дней. Нужны паспорт, подтверждение средств и документы на объект. ХатаМатата помогает подготовить и подать бумаги.
Банки в Турции кредитуют 50–70% стоимости, ставка 3–5% на 20–30 лет. Нужен первый взнос 30–40% и страхование жизни. Условия различаются по городам и банкам.
Налог на передачу права 0–15%, регистрация 0,5–2%, нотариус 0,5–1,5%, комиссия агента 0–3%. Суммарно 2–20% сверх цены объекта. Ставки зависят от региона, типа недвижимости и программ.
Выписка из реестра в Турции занимает 10–15 рабочих дней: право собственности, обременения, налоги. Документы переводят и проверяют с юристом до подписания.
Да. Налог на рентный доход 5–25% в зависимости от режима. Краткосрочная аренда в Анталье (туристическая) даёт 5–8% годовых. Нужно разрешение муниципалитета и регистрация дохода.
Да, рекомендуется. Стоимость — 0,5–1% от цены (196 828 $). Проверяют конструкцию, коммуникации, юридический статус. ХатаМатата подбирает инженера и выдаёт отчёт на RU/EN.
Типичная сделка — 30–90 дней, в среднем 45 дней в Анталье. Проверка (10–15 дней), нотариат (5–7 дней), регистрация (10–14 дней), ВНЖ (30–60 дней, если нужен).

Похожие разделы

Контактное лицо

Все статьи
Купить квартиру в Турции 165000€
Квартира на продажу в Каргыджаке, Турция 191 602 $
1

62

Для инвестиций Что вы получаете: Апартаменты различных планировок в новом элитном проекте в районе Каргыджак. Район\пляж: Новый современный комплекс расположился...

Купить виллу в Турции 675000€
Купить виллу в Анталье, Турция 783 830 $
4
4

300

Для аренды Для инвестиций Что вы получаете: Вилла 4+1 с авторским дизайном в районе Дошемеалты в Анталии. О строительстве: Вилла...