Главная Страны Купить Снять

Вилла 283 м² в Лабине, Хорватия

879 828 $

3 108 $ /м²

4Od7O
Поделиться:

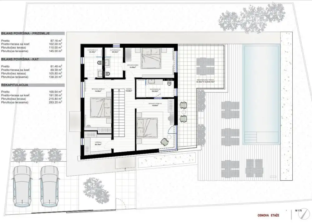
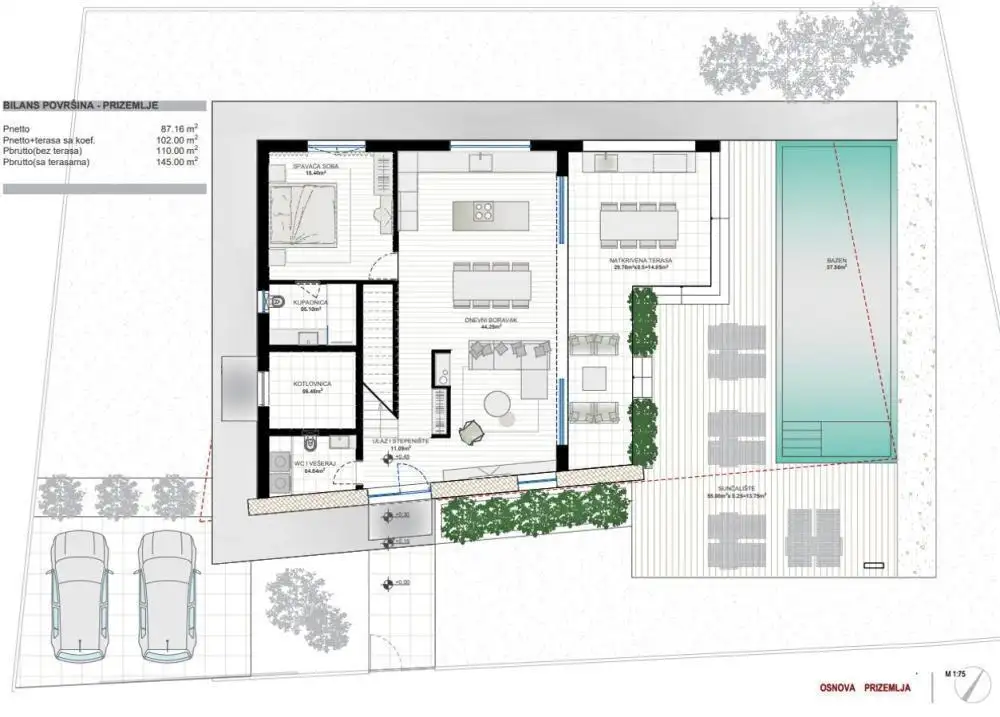
Площадь

283 м2

Спальни

4

Санузлы

4

Вилла в Истрии. Город - Лабин

Дом с современным дизайном и бассейном в районе Лабин!
Недалеко от города Лабин продается дом современного дизайна с бассейном.
Дом в идиллическом поселке спроектирован с соблюдением профессиональных, правовых норм и документации территориального планирования и построен по самым высоким стандартам жилищного строительства.
Благодаря своей скромной архитектуре он не нарушает окружающую среду, а создает синергию природной среды, традиционной истрийской архитектуры и современного дизайна. Традицию символизируют камень и двускатная крыша, а современное выражение — стеклянная стена большого формата.
Простота конструкции традиционной архитектуры привела к созданию компактной планировки и приятного просторного пространства.
Современный интерьер, в котором мягкие и светлые землистые цвета сочетаются с элегантным черным, разделен на два этажа общей чистой площадью 191,58 м² и излучает элегантность и простоту и обеспечивает высокий уровень комфорта.

Первый этаж представляет собой пространство открытой планировки, объединяющее гостиную, столовую и кухню с выходом на просторную крытую террасу с летней кухней.
Планировку первого этажа дополняют спальня со своей ванной комнатой, гостевой туалет и котельная.

На втором этаже расположены три спальни с ванными комнатами, прачечная и просторная терраса.

Двор 601 кв.м. полностью огорожен и элегантно украшен травой и средиземноморскими растениями, а центральное место занимает бассейн площадью 37 м² с зоной для загара.

Указанная цена относится к этапу «под ключ» с установленной сантехникой, встроенными шкафами и кухней с бытовой техникой.

Эта прекрасно интегрированная недвижимость представляет собой исключительную возможность для комфортной семейной жизни, а также в качестве инвестиционной инвестиции в туристический арендный бизнес.

Ref: RE-U-30644

При покупке недвижимости в Хорватии покупатель несет дополнительные расходы около 7% от цены купли-продажи: налог на переход права собственности (3% от стоимости недвижимости), агентская комиссия (3% + НДС), гонорар адвоката (ок. 1%), нотариальная пошлина, судебная пошлина, оплата услуг сертифицированного переводчика. Подписание Агентского соглашения (на 3% комиссии + НДС) предшествует показу объектов.

Преимущества: Бассейн, Урбанизированный, Современный

Услуги и удобства

Бассейн

Дополнительные детали

Тип недвижимости

Жилые объекты

Тип объекта

Вилла

Цена

879 828 $

Площадь участка

601

Характеристики

Бассейн

Частые вопросы

В Хорватии ВНЖ оформляется после инвестиции от установленного порога. Рассмотрение заявки в Лабине — 30–60 дней. Нужны паспорт, подтверждение средств и документы на объект. ХатаМатата помогает подготовить и подать бумаги.
Банки в Хорватии кредитуют 50–70% стоимости, ставка 3–5% на 20–30 лет. Нужен первый взнос 30–40% и страхование жизни. Условия различаются по городам и банкам.
Налог на передачу права 0–15%, регистрация 0,5–2%, нотариус 0,5–1,5%, комиссия агента 0–3%. Суммарно 2–20% сверх цены объекта. Ставки зависят от региона, типа недвижимости и программ.
Выписка из реестра в Хорватии занимает 10–15 рабочих дней: право собственности, обременения, налоги. Документы переводят и проверяют с юристом до подписания.
Да. Налог на рентный доход 5–25% в зависимости от режима. Краткосрочная аренда в Лабине (туристическая) даёт 5–8% годовых. Нужно разрешение муниципалитета и регистрация дохода.
Да, рекомендуется. Стоимость — 0,5–1% от цены (879 828 $). Проверяют конструкцию, коммуникации, юридический статус. ХатаМатата подбирает инженера и выдаёт отчёт на RU/EN.
Типичная сделка — 30–90 дней, в среднем 45 дней в Лабине. Проверка (10–15 дней), нотариат (5–7 дней), регистрация (10–14 дней), ВНЖ (30–60 дней, если нужен).

Похожие разделы

Все статьи
Купить виллу в Хорватии 1500000€
Продажа виллы в Баньоле, Хорватия 1 766 724 $
5
4

277

Роскошная вилла на продажу в Истрии, Хорватия – Эксклюзивная прибрежная собственность в Банёле! Расположенная в одном из самых престижных и...

Купить виллу в Хорватии 590000€
Купить виллу в Крнице, Хорватия 694 911 $
3
3

135

На суровых окраинах Истрийского полуострова, недалеко от мистической деревни Криница, расположена резиденция исключительной значимости. Эта современная низкоэнергетическая...