















Площадь
393 м2
Спальни
4
Санузлы
5
Вилла в Далмации. Город - Сплит
Суперсовременная вилла с удивительной передовой архитектурой, которая оставит вас в восторге!
 Ле Корбюзье была бы в восторге от этой виллы!
 Вилла строится в Каштел-Штафилич недалеко от Сплита, в конце тупиковой дороги, в окружении полей и умиротворяющей природы, всего в 400 м от центра города, моря и прекрасных пляжей Кастелы.
Общая площадь дома: 214 м2
 Чистая площадь дома: 176 м2 (закрытый) + 217м2 терраса
 Общая площадь виллы: 393 м2
 Земельный участок 642 кв.м.
Дом состоит из трех уровней.
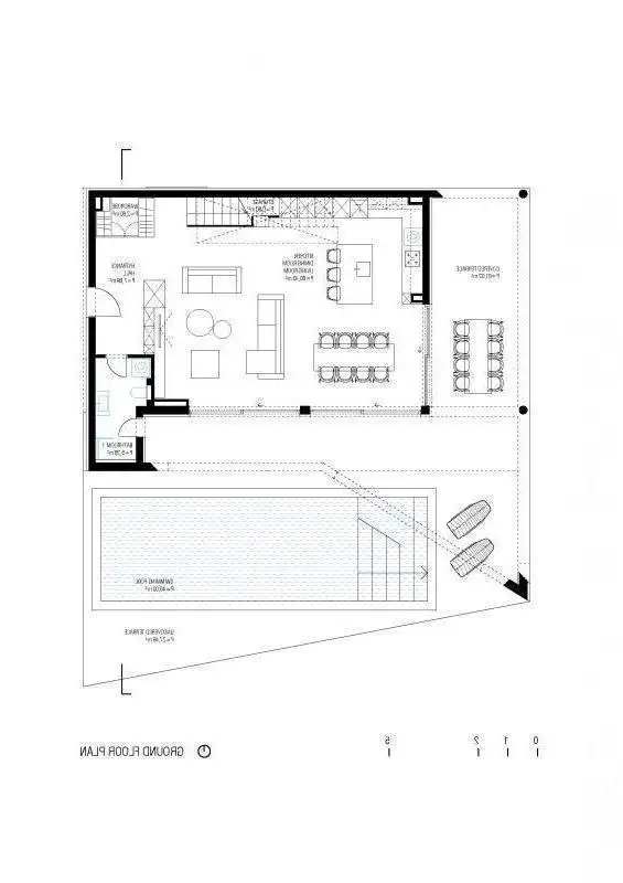
 Первый этаж: прихожая, гардеробная, санузел, гостиная с кухней и столовой, которые соединены стеклянной стеной с просторной крытой террасой и бассейном.
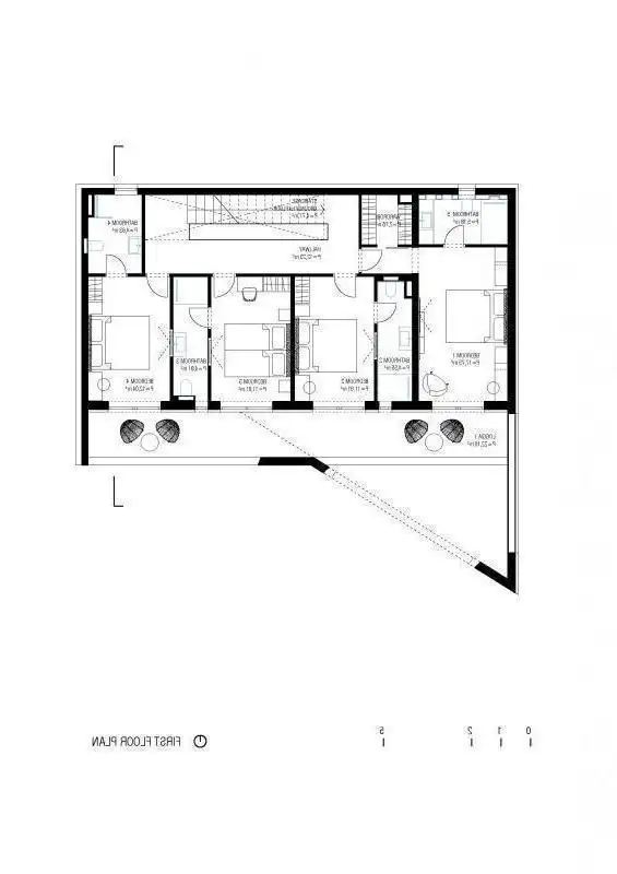
 1 этаж: коридор, хозяйская спальня с гардеробной и санузлом, три спальни, три санузла, лоджия.
 Также есть возможность иметь три ванные комнаты наверху и одну комнату большего размера.
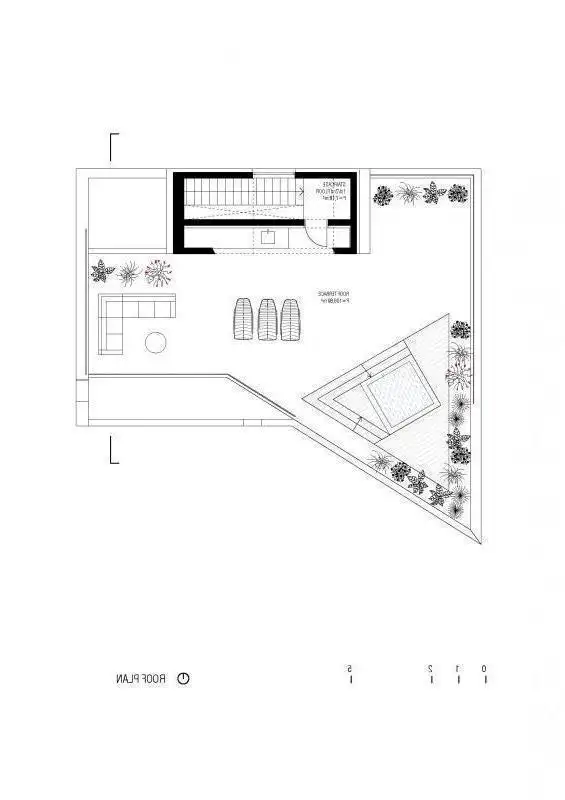
 Верхний уровень - лучшая часть виллы - терраса на крыше с джакузи, шезлонгами и прекрасным видом. Идеальное место, чтобы расслабиться и провести вечер, любуясь закатом.
Дом в настоящее время бетонный, с окнами. Вы можете участвовать в выборе деталей интерьера, стиля, цвета, мебели.
 Стоимость полностью отделанного и меблированного дома составит 890 000 евро. Он может быть завершен в 2022 году.
При покупке недвижимости в Хорватии покупатель несет дополнительные расходы около 7% от цены купли-продажи: налог на переход права собственности (3% от стоимости недвижимости), агентская комиссия (3% + НДС), гонорар адвоката (ок. 1%), нотариальная пошлина, судебная пошлина, оплата услуг сертифицированного переводчика. Подписание Агентского соглашения (на 3% комиссии + НДС) предшествует показу объектов.
Услуги и удобства
Дополнительные детали
Тип недвижимости
Жилые объекты
Тип объекта
Вилла
Цена
1 226 851 $
Площадь участка
642
Характеристики
Контактное лицо
Комментарий

390 м²
На продажу предлагается роскошная вилла в стадии строительства, расположенная в тихом и возвышенном месте над Сплитом, в живописной местности Клиса,...

120 м²
Элегантная и современно меблированная одноэтажная вилла с бассейном в тихом месте над главной дорогой, в Кастел Стара, примерно в 2...
Наши менеджеры помогут с выбором объекта
Лилия
Консультант по зарубежной недвижимости
