Главная Страны Купить Снять

Вилла 246 м² в Медулине, Хорватия

1 249 536 $

5 079 $ /м²

4OhUG
Поделиться:

Площадь

246 м2

Спальни

4

Санузлы

5

Вилла в Истрии. Город - Медулин

Эксклюзивный дуплекс на продажу в Медулине, предлагающий захватывающие виды на море с каждого этажа и расположенный всего в 300 метрах от моря в одном из самых желанных и популярных прибрежных районов.
Этот исключительный объект представляет собой настоящую морскую мечту, сочетая фантастический современный дизайн с непревзойденным расположением и панорамными видами, которые гарантированно останутся открытыми.

Вилла имеет общую жилую площадь 245,74 м² и расположена на участке площадью 487 м². Рекламируемая цена относится к текущему этапу ROH BAU, включая действительное разрешение на строительство и полностью оплаченные все коммунальные услуги. Также есть возможность приобрести объект в состоянии «под ключ» за цену 1 590 000 EUR, что позволит будущим владельцам наслаждаться полностью готовым роскошным домом без дополнительных усилий.

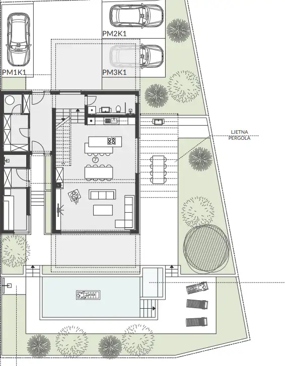
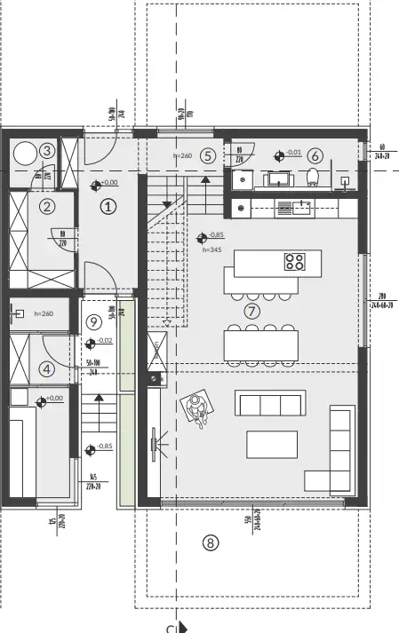
Вилла спроектирована на трех уровнях: первый этаж, второй этаж и третий этаж, все продуманы для максимального комфорта, естественного света и непрерывных видов на море. На первом этаже находятся входная прихожая, кладовая, техническое помещение и отдельная зона СПА с сауной и душем. Просторная гостиная, кухня и столовая в открытой планировке окружены большими стеклянными стенами, создающими яркую, элегантную атмосферу и сильную связь с открытым пространством. Из гостиной есть прямой выход на большую крытую террасу, которая плавно соединяется с бесконечным бассейном и джакузи, предлагая потрясающие виды на море даже во время отдыха в помещении или у бассейна.

На втором этаже находятся три спальни, каждая с собственной ванной комнатой, а также крытые и открытые террасы. Две спальни и коридор на этом уровне также наслаждаются красивыми видами на море, что еще больше подчеркивает роскошное ощущение этого объекта.

Третий этаж действительно является изюминкой дома, здесь находится последняя спальня с собственной ванной комнатой и террасой. Панорамный вид на море с этого уровня абсолютно впечатляющий и превышает все ожидания, делая это пространство настоящим частным убежищем.

Благодаря своему эксклюзивному расположению, современной архитектуре и непрерывным видам на море с каждого этажа, этот дуплекс является выдающейся возможностью для роскошной жизни или высококлассных инвестиций на рынке недвижимости премиум-класса в Медулине.

Ref: RE-U-44845

При покупке недвижимости в Хорватии покупатель несет дополнительные расходы около 7% от цены купли-продажи: налог на переход права собственности (3% от стоимости недвижимости), агентская комиссия (3% + НДС), гонорар адвоката (ок. 1%), нотариальная пошлина, судебная пошлина, оплата услуг сертифицированного переводчика. Подписание Агентского соглашения (на 3% комиссии + НДС) предшествует показу объектов.

Преимущества: Бассейн, Хранилище, Спа, Сауна, Пристроенный, Разрешение на строительство, Современный

Услуги и удобства

Бассейн

Дополнительные детали

Тип недвижимости

Жилые объекты

Тип объекта

Вилла

Цена

1 249 536 $

Площадь участка

487

Характеристики

Бассейн

Частые вопросы

В Хорватии ВНЖ оформляется после инвестиции от установленного порога. Рассмотрение заявки в Медулине — 30–60 дней. Нужны паспорт, подтверждение средств и документы на объект. ХатаМатата помогает подготовить и подать бумаги.
Банки в Хорватии кредитуют 50–70% стоимости, ставка 3–5% на 20–30 лет. Нужен первый взнос 30–40% и страхование жизни. Условия различаются по городам и банкам.
Налог на передачу права 0–15%, регистрация 0,5–2%, нотариус 0,5–1,5%, комиссия агента 0–3%. Суммарно 2–20% сверх цены объекта. Ставки зависят от региона, типа недвижимости и программ.
Выписка из реестра в Хорватии занимает 10–15 рабочих дней: право собственности, обременения, налоги. Документы переводят и проверяют с юристом до подписания.
Да. Налог на рентный доход 5–25% в зависимости от режима. Краткосрочная аренда в Медулине (туристическая) даёт 5–8% годовых. Нужно разрешение муниципалитета и регистрация дохода.
Да, рекомендуется. Стоимость — 0,5–1% от цены (1 249 536 $). Проверяют конструкцию, коммуникации, юридический статус. ХатаМатата подбирает инженера и выдаёт отчёт на RU/EN.
Типичная сделка — 30–90 дней, в среднем 45 дней в Медулине. Проверка (10–15 дней), нотариат (5–7 дней), регистрация (10–14 дней), ВНЖ (30–60 дней, если нужен).

Похожие разделы

Все статьи
Купить виллу в Хорватии 699000€
В продаже Вилла в Крнице, Хорватия 817 049 $
4
3

240

Современная вилла на продажу в Истрии недалеко от Пулы представляет собой выдающуюся возможность для покупателей, ищущих недвижимость в...

Купить виллу в Хорватии 580000€
Вилла на продажу в Бртонигле, Хорватия 677 952 $
4
3

165

Расположенный в живописной сельской местности северо-западной Истрии, недалеко от очаровательного города Бртонигла, этот красивый роскошный дом с...