Главная Страны Купить Снять

Квартира 173 м² в Херцег-Нови, Черногория

497 718 $

2 876 $ /м²

4Oezk
Поделиться:

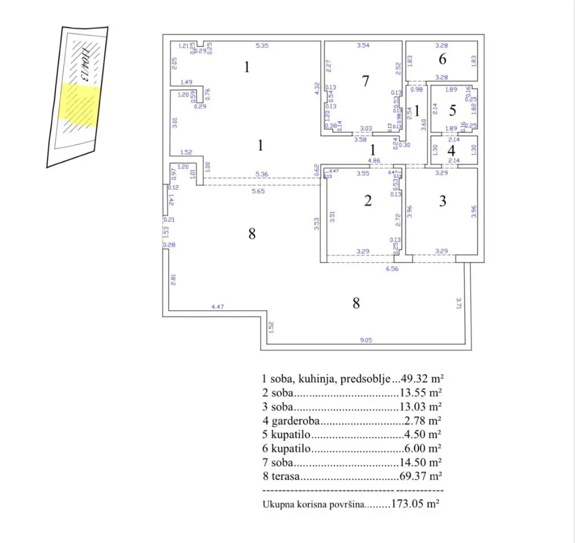
Площадь

173 м2

Спальни

3

Квартира в Херцег-Нови. Город - Херцег-Нови

Просторная квартира с 3 спальнями и потрясающим видом на залив в современном комплексе в Херцег-Нови.


Площадь квартиры - 173 м2

Квартира состоит из просторной гостиной с кухней, трех спален, двух санузлов, гардеробной, двух кладовых и большой террасы.

Из окон и террасы открывается фантастический вид на залив, горы Ловчен и открытое море.

Квартира оснащена мебелью и техникой, а также всем необходимым для жизни, включая кухонные принадлежности, пастельное белье и т.д.

В квартире установлены три кондиционера, а также во всех комнатах имеются потолочные вентиляторы.

Тёплые полы в санузлах и на кухне.

На террасе установлен газовый камин, а в спальне электрический камин.

Выделенное парковочное место.

Комплекс расположен в тихом и живописном месте, для любителей прогулок рядом лес с пешими тропами и старыми крепостями.

Расстояние до моря - 20 минут пешком.

Также рядом расположена частная школа Адриатик-Нови.

 

Уютная, светлая и просторная квартира, в одном из самых живописных районов Черногории.

 

Цена - 420 000 евро 

 

 

 

Дополнительные детали

Тип недвижимости

Жилые объекты

Количество комнат

3

Тип объекта

Квартира

Цена

497 718 $

Характеристики

Вид на море

Частые вопросы

В Черногории ВНЖ оформляется после инвестиции от установленного порога. Рассмотрение заявки в Херцег-Нови — 30–60 дней. Нужны паспорт, подтверждение средств и документы на объект. ХатаМатата помогает подготовить и подать бумаги.
Банки в Черногории кредитуют 50–70% стоимости, ставка 3–5% на 20–30 лет. Нужен первый взнос 30–40% и страхование жизни. Условия различаются по городам и банкам.
Налог на передачу права 0–15%, регистрация 0,5–2%, нотариус 0,5–1,5%, комиссия агента 0–3%. Суммарно 2–20% сверх цены объекта. Ставки зависят от региона, типа недвижимости и программ.
Выписка из реестра в Черногории занимает 10–15 рабочих дней: право собственности, обременения, налоги. Документы переводят и проверяют с юристом до подписания.
Да. Налог на рентный доход 5–25% в зависимости от режима. Краткосрочная аренда в Херцег-Нови (туристическая) даёт 5–8% годовых. Нужно разрешение муниципалитета и регистрация дохода.
Да, рекомендуется. Стоимость — 0,5–1% от цены (497 718 $). Проверяют конструкцию, коммуникации, юридический статус. ХатаМатата подбирает инженера и выдаёт отчёт на RU/EN.
Типичная сделка — 30–90 дней, в среднем 45 дней в Херцег-Нови. Проверка (10–15 дней), нотариат (5–7 дней), регистрация (10–14 дней), ВНЖ (30–60 дней, если нужен).

Похожие разделы

Все статьи
Купить дом в Черногории 79000€
Дом на продажу в Зеленике, Черногория 93 618 $
3

120

Старинный каменный дом с видом на море в Зеленике, Херцег-Нови, Черногория В районе Зеленика, муниципалитет Херцег-Нови, продаётся аутентичный каменный дом...

Купить дом в Черногории 140000€
Купить дом в Каменарях, Черногория 165 906 $
2

60

Каменный дом под реконструкцию в Каменари, Херцег-Нови, Черногория Продаётся часть старинного каменного дома с земельным участком - интересный вариант для...