Главная Страны Купить Снять

Вилла 195 м² в Лабине, Хорватия

765 580 $

3 926 $ /м²

4Od8e
Поделиться:

Площадь

195 м2

Спальни

3

Санузлы

3

Вилла в Истрии. Город - Лабин

На полпути между Пулой и Опатией, высоко над побережьем Истрии, расположен небольшой городок Лабин.
В 1950-х и 60-х годах его средневековое ядро было центром добычи угля. Сегодня это место, где история и современность смешиваются. Город известен своими очаровательными бухтами, изысканной гастрономией и дружелюбными, остроумными местными жителями, что делает его любимым местом для посетителей из немецкоязычных стран. Здесь вам гарантирован теплый прием.

На окраине города продается прекрасный отдельно стоящий дом площадью 195 м².
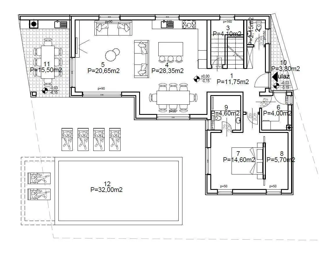
Вилла занимает два этажа. На первом этаже находятся кухня, гостиная со столовой, туалет, кладовая, спальня с гардеробной и ванной комнатой, прачечная и две открытые террасы. На одной террасе будет летняя кухня, а другая ведет к бассейну площадью 32 м².

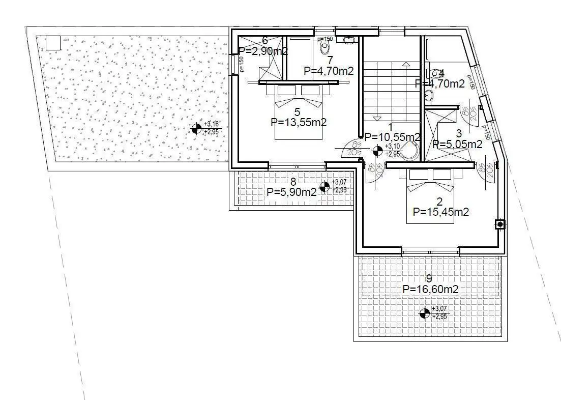
Наверху есть две просторные спальни, каждая со своей ванной комнатой, гардеробной и открытой террасой. Дом будет отапливаться кондиционером и теплым полом. В настоящее время конструкция находится под крышей с установленными столярными изделиями, и ожидается, что строительство будет завершено в начале 2024 года.
Недвижимость продается «под ключ», включая полностью меблированную кухню и бытовую технику.

Площадь земельного участка составляет 995 кв.м.

Учитывая ее востребованное расположение, близость к морю и всем удобствам, эта вилла идеально подходит для туристической аренды или семейного проживания.

Ref: RE-U-33379

При покупке недвижимости в Хорватии покупатель несет дополнительные расходы около 7% от цены купли-продажи: налог на переход права собственности (3% от стоимости недвижимости), агентская комиссия (3% + НДС), гонорар адвоката (ок. 1%), нотариальная пошлина, судебная пошлина, оплата услуг сертифицированного переводчика. Подписание Агентского соглашения (на 3% комиссии + НДС) предшествует показу объектов.

Преимущества: Бассейн, Хранилище, Подогрев пола, Отдельно стоящий

Услуги и удобства

Бассейн
Кондиционер

Дополнительные детали

Тип недвижимости

Жилые объекты

Тип объекта

Вилла

Цена

765 580 $

Площадь участка

995

Характеристики

Бассейн
Кондиционер

Частые вопросы

В Хорватии ВНЖ оформляется после инвестиции от установленного порога. Рассмотрение заявки в Лабине — 30–60 дней. Нужны паспорт, подтверждение средств и документы на объект. ХатаМатата помогает подготовить и подать бумаги.
Банки в Хорватии кредитуют 50–70% стоимости, ставка 3–5% на 20–30 лет. Нужен первый взнос 30–40% и страхование жизни. Условия различаются по городам и банкам.
Налог на передачу права 0–15%, регистрация 0,5–2%, нотариус 0,5–1,5%, комиссия агента 0–3%. Суммарно 2–20% сверх цены объекта. Ставки зависят от региона, типа недвижимости и программ.
Выписка из реестра в Хорватии занимает 10–15 рабочих дней: право собственности, обременения, налоги. Документы переводят и проверяют с юристом до подписания.
Да. Налог на рентный доход 5–25% в зависимости от режима. Краткосрочная аренда в Лабине (туристическая) даёт 5–8% годовых. Нужно разрешение муниципалитета и регистрация дохода.
Да, рекомендуется. Стоимость — 0,5–1% от цены (765 580 $). Проверяют конструкцию, коммуникации, юридический статус. ХатаМатата подбирает инженера и выдаёт отчёт на RU/EN.
Типичная сделка — 30–90 дней, в среднем 45 дней в Лабине. Проверка (10–15 дней), нотариат (5–7 дней), регистрация (10–14 дней), ВНЖ (30–60 дней, если нужен).

Похожие разделы

Все статьи
Купить виллу в Хорватии 1500000€
Продажа виллы в Баньоле, Хорватия 1 766 724 $
5
4

277

Роскошная вилла на продажу в Истрии, Хорватия – Эксклюзивная прибрежная собственность в Банёле! Расположенная в одном из самых престижных и...

Купить виллу в Хорватии 590000€
Купить виллу в Крнице, Хорватия 694 911 $
3
3

135

На суровых окраинах Истрийского полуострова, недалеко от мистической деревни Криница, расположена резиденция исключительной значимости. Эта современная низкоэнергетическая...