Природа и уют в одном комплексе: новый жилой проект в Софии окруженный природой

Каждый из домов состоит из подвала и двух этажей и имеет свой внутренний дворик с возможностью установки бассейна. Жилая площадь дома 633 кв. м и патио 1197 м2.
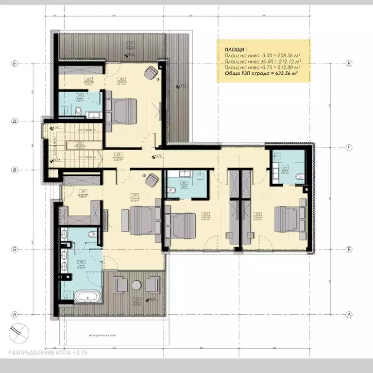
Планировка каждого дома:
- Первый этаж: кладовая, ванная с туалетом, прачечная, кладовая, полка для обуви, тренажерный зал, гараж на три машины.
- Второй этаж: кабинет, туалет, антресоль, кухня, столовая, гостиная, крытая веранда.
- Третий этаж: спальня с ванной комнатой и гардеробной, вторая спальня с ванной комнатой и гардеробной, еще две спальни с ванной комнатой.
В строительстве используются качественные материалы.

В комплексе предусмотрена круглосуточная охрана, видеонаблюдение и современные технологии безопасности, такие как зонированная охрана периметра с инфракрасными датчиками на заборе. В дополнение к уходу за большими внутренними двориками, добавляются садовые услуги, обслуживание и очистка от листьев и снега общих частей комплекса.
Расположение: София, Болгария
площадь: 633 кв. м
количество спален: 5
количество санузлов: 7
Цена: € 1.127.100
Подберём недвижимость в Болгарии под ваш запрос
- 🔸 Надежные новостройки и готовые квартиры
- 🔸 Без комиссий и посредников
- 🔸 Онлайн-показ и дистанционная сделка
Консультант по зарубежной недвижимости
Подпишитесь на новостную рассылку от Hatamatata.ru!
Подпишитесь на новостную рассылку от Hatamatata.ru!
Популярные статьи
Подберём недвижимость в Болгарии под ваш запрос
- 🔸 Надежные новостройки и готовые квартиры
- 🔸 Без комиссий и посредников
- 🔸 Онлайн-показ и дистанционная сделка
Консультант по зарубежной недвижимости
Подпишитесь на новостную рассылку от Hatamatata.ru!
Подпишитесь на новостную рассылку от Hatamatata.ru!
Я соглашаюсь с правилами обработки персональных данных и конфиденциальности HatamatataНужна консультация по вашей ситуации?
Бесплатно консультируем по подбору зарубежной недвижимости. Обсудим ваши задачи, подберем стратегии и подходящие страны, объясним, как поэтапно оформить сделку. Ответим на любые вопросы о покупке, инвестициях и переезде за рубеж.
Ирина Николаева
Директор по продажам HataMatata





